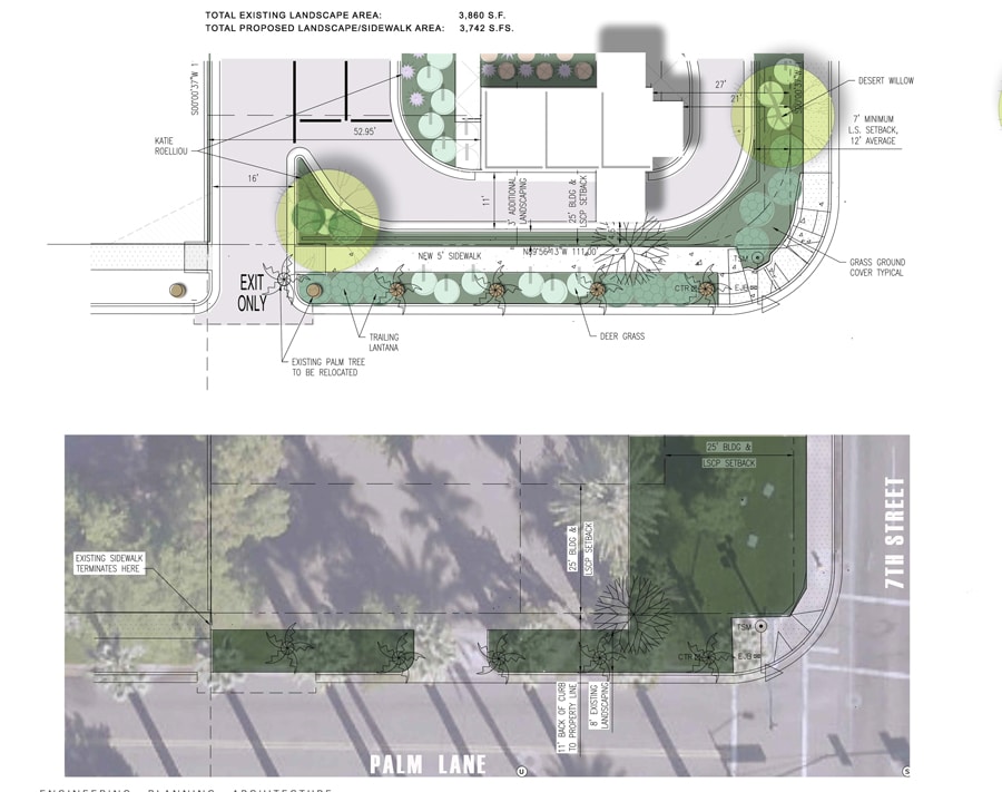
Architecture Color Site Plan

SEG Marketing
SEG Marketing